Torrevieja · Playa de El Cura Apartamento · Nueva construcción

Torrevieja · Playa de El Cura Apartamento · Nueva construcción

Características clave

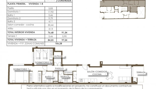
Habitaciones: 2
Baños: 2
Construidos: 91m2
Piscina:

Características

Communal Pool
Cerca de una ruta de autobús

Descripción

Localización

Pide información

Responsable del tratamiento: Gary Briant, Finalidad del tratamiento: Gestión y control de los servicios ofrecidos a través de la página Web de Servicios inmobiliarios, Envío de información a traves de newsletter y otros, Legitimación: Por consentimiento, Destinatarios: No se cederan los datos, salvo para elaborar contabilidad, Derechos de las personas interesadas: Acceder, rectificar y suprimir los datos, solicitar la portabilidad de los mismos, oponerse altratamiento y solicitar la limitación de éste, Procedencia de los datos: El Propio interesado, Información Adicional: Puede consultarse la información adicional y detallada sobre protección de datos Aquí.
WhatsApp