Bungalows de nueva construcción de estilo boutique con piscina privada en Pilar de la Horadada, a 2 km de la playa
Promoción exclusiva cerca de la playa en la Costa Blanca
Descubra esta promoción residencial de estilo boutique compuesta por solo seis modernos bungalows en Pilar de la Horadada, una encantadora localidad costera situada en el sur de la Costa Blanca. A solo 2 km de las hermosas playas de arena de Torre de la Horadada, este proyecto ofrece una combinación perfecta de diseño contemporáneo, comodidad y ubicación privilegiada.
Situadas en una zona residencial céntrica y bien comunicada, estas viviendas se encuentran a poca distancia a pie del centro de la localidad, donde encontrará una amplia variedad de tiendas, restaurantes, cafeterías y todos los servicios esenciales. Pilar de la Horadada es conocida por su ambiente tradicional español, su acogedora comunidad y su relajado estilo de vida mediterráneo.
Bungalows modernos con espacios exteriores privados
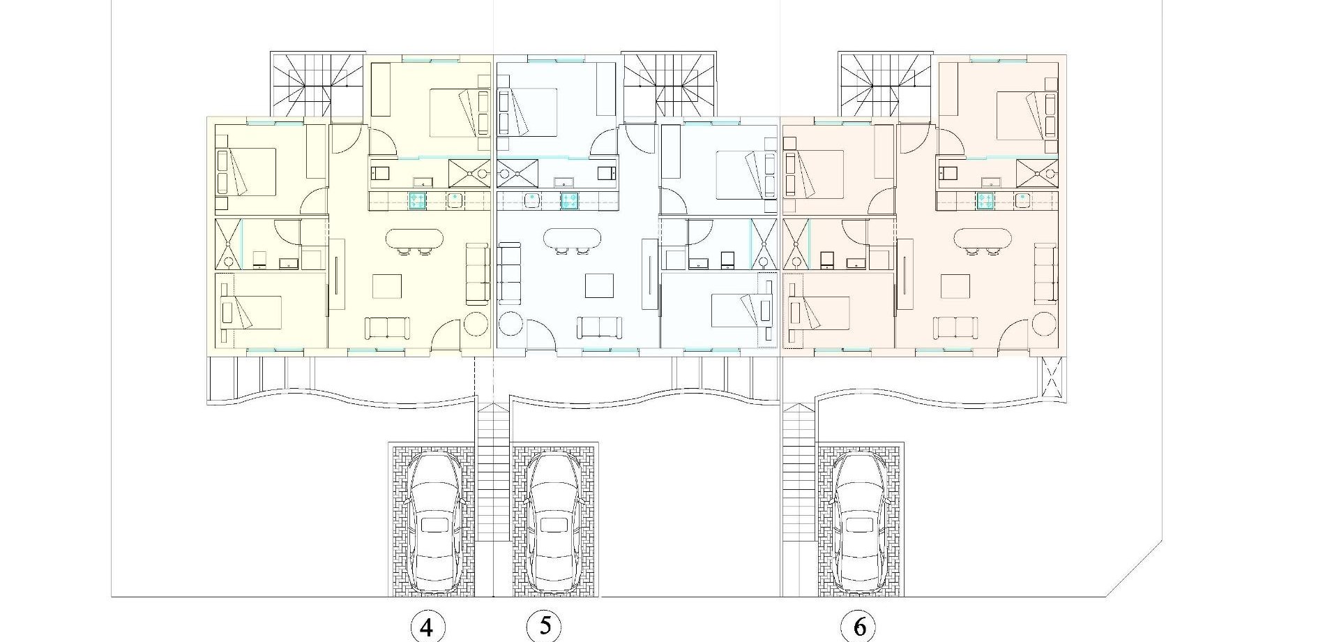
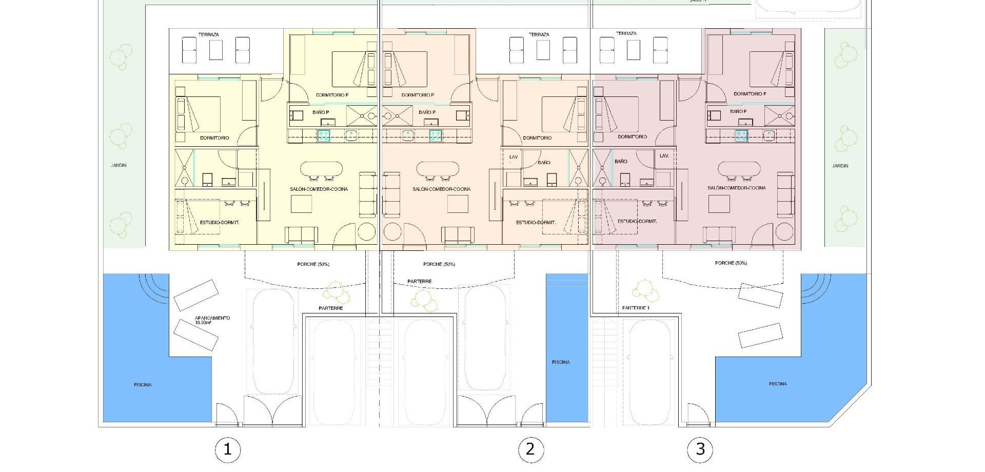
Todas las viviendas cuentan con tres dormitorios y dos baños, incluido un dormitorio principal con baño en suite. Los compradores pueden elegir entre distribuciones en planta baja y en planta alta, cada una de las cuales ofrece opciones únicas de vida al aire libre.
Los bungalows de planta baja incluyen jardín privado, piscina privada y plaza de aparcamiento en la parcela, ideales para quienes buscan espacio y fácil acceso. Las viviendas de la planta superior ofrecen una terraza privada y un solárium en la azotea con piscina privada, así como una plaza de aparcamiento asignada a pie de calle.
Los interiores están diseñados con zonas de estar diáfanas, que combinan la cocina, el comedor y el salón para maximizar la luz natural y crear una fluidez perfecta en toda la vivienda.
Acabados de alta calidad y características contemporáneas
Estas viviendas de nueva construcción se han construido con materiales y acabados de alta calidad. Entre sus características se incluyen paredes de yeso liso, suelos de porcelánico en toda la vivienda y armarios empotrados.
Las modernas cocinas abiertas vienen completamente amuebladas y equipadas con electrodomésticos. Otras características incluyen preinstalación para aire acondicionado por conductos, sistema aerotérmico para agua caliente de bajo consumo, paquete de iluminación LED, persianas eléctricas y sistema de videoportero.
Los cuartos de baño están totalmente equipados con muebles de baño y espejos, ofreciendo tanto estilo como funcionalidad.
Ubicación privilegiada cerca de playas, campos de golf y servicios
Pilar de la Horadada ofrece una ubicación ideal tanto para residencias permanentes como para viviendas vacacionales. Las cercanas playas de Torre de la Horadada se encuentran a unos 2 km, conocidas por su arena dorada y sus aguas cristalinas.
Otros puntos de interés clave incluyen el campo de golf Lo Romero a 6 km, el centro comercial La Zenia Boulevard a 15 km, el aeropuerto de Murcia-Corvera a 40 km y el aeropuerto de Alicante a 55 km. La zona también cuenta con excelentes conexiones por carretera con las localidades costeras cercanas, los puertos deportivos y las instalaciones de ocio.
Oportunidad de inversión ideal en la Costa Blanca
Esta exclusiva promoción ofrece una oportunidad única de adquirir un elegante bungalow de nueva construcción en una ubicación muy codiciada cerca del mar.
Póngase en contacto con nosotros hoy mismo para obtener más información o concertar una visita y asegurarse su nuevo hogar en Pilar de la Horadada.