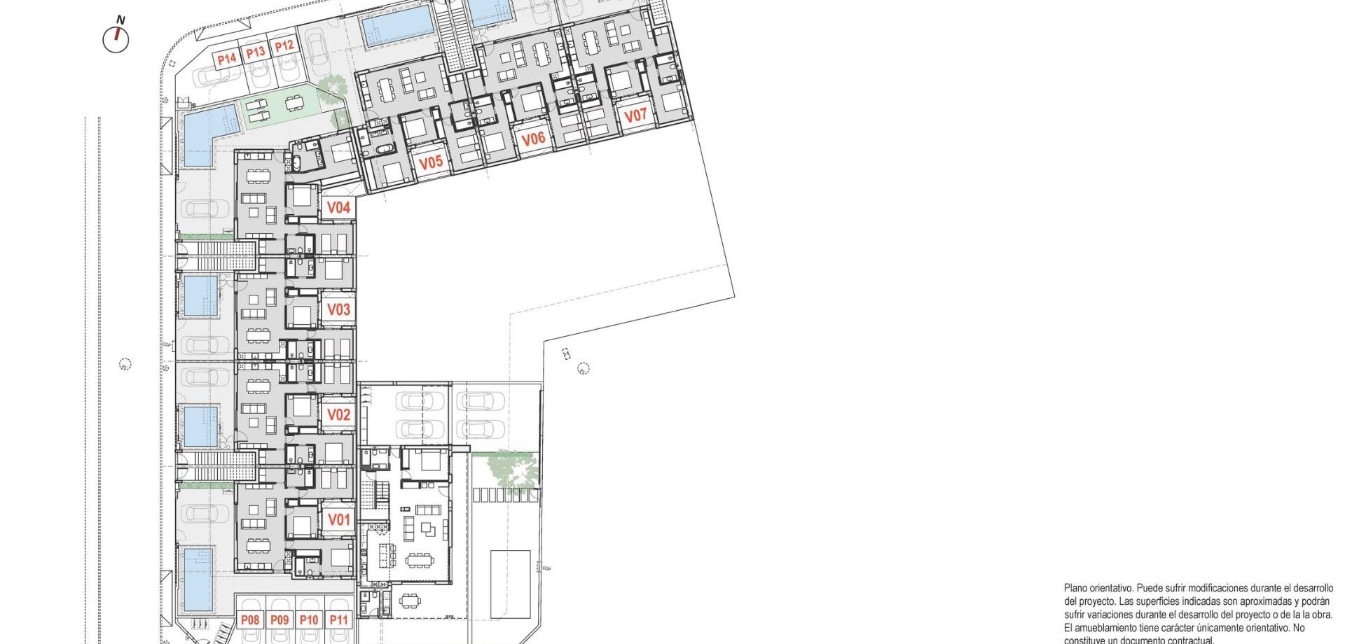
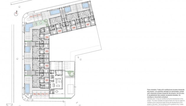
Pilar de la Horadada · pueblo Appartement · Nouvelle construction

Pilar de la Horadada · pueblo Appartement · Nouvelle construction

Principales caractéristiques

Chambres: 3
Salles de bain: 2
Construit: 93m2

Les caractéristiques

Laundry room
Près de la ligne de bus

La description

Emplacement

Demander des informations

Responsable del tratamiento: Gary Briant, Finalidad del tratamiento: Gestión y control de los servicios ofrecidos a través de la página Web de Servicios inmobiliarios, Envío de información a traves de newsletter y otros, Legitimación: Por consentimiento, Destinatarios: No se cederan los datos, salvo para elaborar contabilidad, Derechos de las personas interesadas: Acceder, rectificar y suprimir los datos, solicitar la portabilidad de los mismos, oponerse altratamiento y solicitar la limitación de éste, Procedencia de los datos: El Propio interesado, Información Adicional: Puede consultarse la información adicional y detallada sobre protección de datos Aquí.
WhatsApp