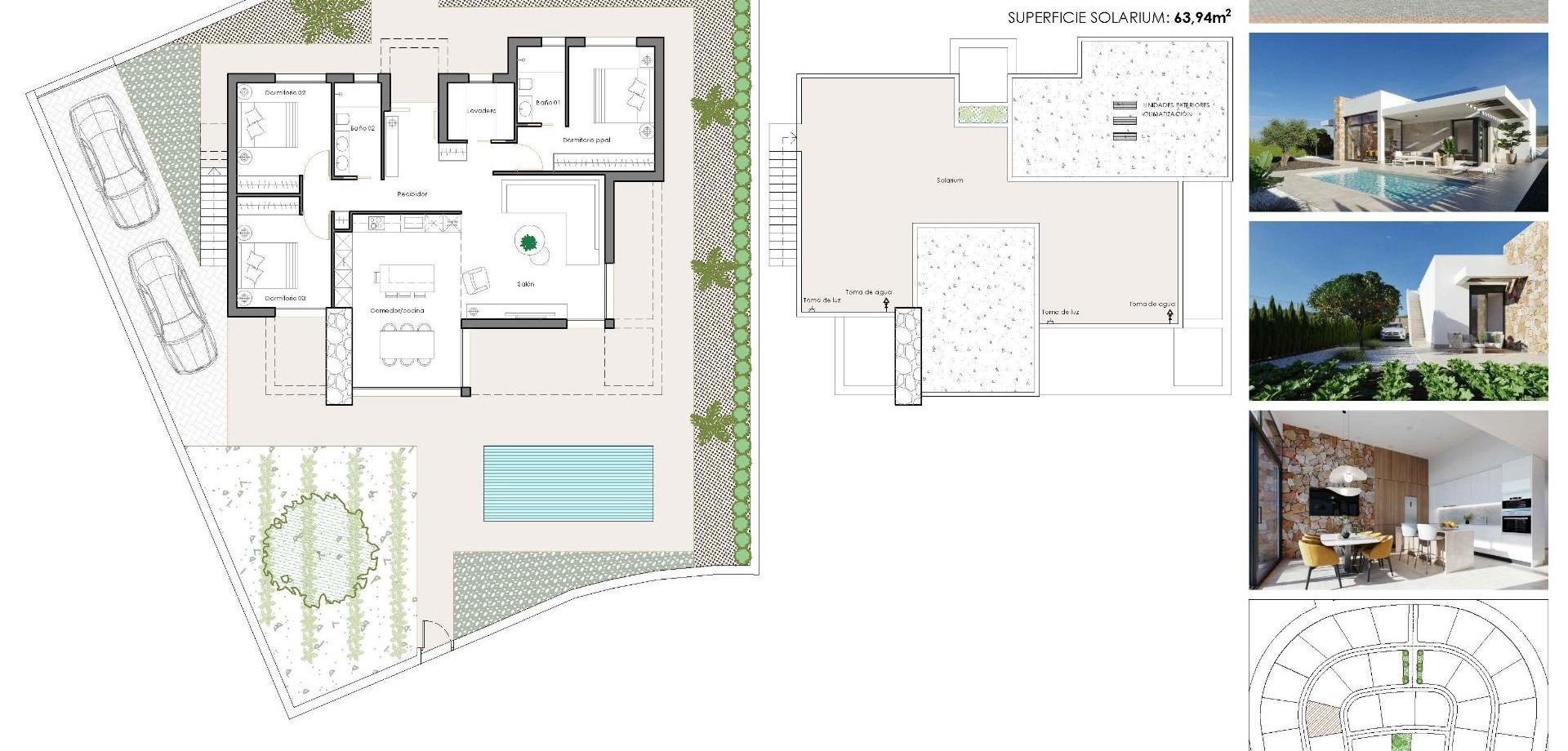
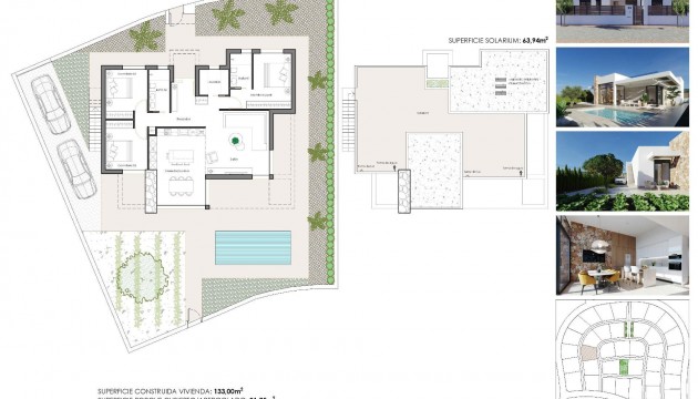
Villas neuves à Hacienda del Álamo Golf Resort, Murcie Maisons modernes dans un cadre naturel et exclusif Découvrez ces fantastiques villas neuves dans le prestigieux Hacienda del Álamo Golf Resort, un lotissement fermé dans la région de Murcie qui allie tranquillité, sécurité et une offre complète de services. Entouré par la nature et bénéficiant d'un climat privilégié, ce complexe est idéal pour ceux qui recherchent un style de vie détendu sans renoncer au confort. Villas de 3 chambres sur un seul étage avec solarium Le lotissement se compose de 39 villas sur des parcelles à partir de 436 m². Toutes les maisons disposent de 3 chambres et 2 salles de bains complètes sur un seul étage, ainsi que d'une terrasse avec piscine privée et d'un solarium privé sur le toit avec vue sur le terrain de golf. Finitions de haute qualité et confort garanti Les maisons sont conçues avec des matériaux de haute qualité et pensées pour offrir efficacité énergétique et bien-être : Menuiserie extérieure avec rupture de pont thermique Eau chaude par système aérothermique Pré-installation de climatisation par conduits Piscine privée Installation indépendante d'eau d'irrigation avec réservoir accumulateur et groupe de pression individuel, avec prises d'irrigation dans le garage et le jardin. Porte d'accès motorisée pour les véhicules. Un complexe avec tous les services et un terrain de golf Hacienda del Álamo est l'un des complexes les plus complets de la Costa Cálida. Il dispose de : Terrain de golf professionnel 18 trous Hôtel avec spa Supermarché Restaurants et bars Terrains de sport et espaces verts Sécurité 24h/24 Le lotissement recrée l'atmosphère d'un village méditerranéen traditionnel, avec des rues tranquilles et un design soigné. Emplacement stratégique à proximité de tout Aéroport international de Murcie (Corvera) : 20 km Terrains de golf supplémentaires : moins de 10 km Carthagène : 35 km Plages de la Mar Menor : 30 km Centre commercial Espacio Mediterráneo : 28 km Port de Mazarrón : 40 km Vivez avec style sur la Costa Cálida Ces villas représentent une excellente opportunité pour vivre ou investir dans l'une des zones les plus prometteuses de Murcie. Contactez-nous dès maintenant et découvrez votre prochaine maison à Hacienda del Álamo Golf Resort.