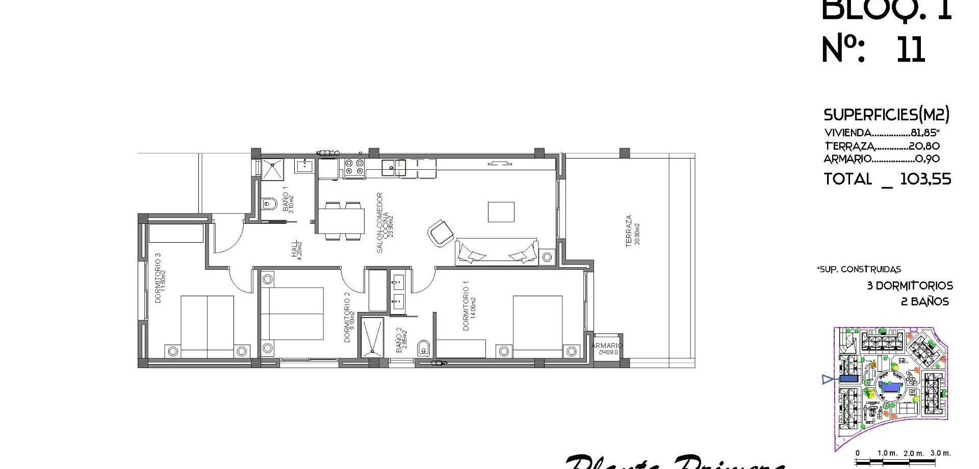
NOUVEAU COMPLEXE RÉSIDENTIEL A EL RASO Nouveau complexe résidentiel fermé d'appartements touristiques à El Raso, Guardamar del Segura. Ce nouveau complexe résidentiel sera composé de 78 appartements touristiques et penthouses distribués au rez-de-chaussée, au premier étage et au deuxième étage + solarium. Toutes les propriétés disposeront d'une place de parking et d'une salle de stockage dans le sous-sol, qui sera accessible par les escaliers de la communauté ou par l'ascenseur à chaque étage. Les espaces communs comprendront une piscine, une salle de réception/réunion, un gymnase extérieur, un terrain de pétanque, un mini-golf et un spa. DES DÉTAILS À SOULIGNER DANS NOTRE NOUVEAU DÉVELOPPEMENT : DES LOGEMENTS À LOYER AUTORISÉ : Ces appartements offrent ce qu'aucun autre n'offre dans ce quartier résidentiel. Vous pouvez profiter de votre logement 4 mois par an pour votre usage personnel, et le reste de l'année, il peut être loué, ce qui vous permet d'obtenir une rentabilité sans avoir à vous soucier de quoi que ce soit, car une société de location spécialisée s'occupera de tout pour vous. LOGEMENTS COMPLETEMENT MEUBLES : tous les logements de notre nouveau projet seront entièrement meublés et prêts à être habités, avec l'éclairage, les meubles, les appareils électroménagers et les salles de bains entièrement finies. PLUSIEURS TYPES DE LOGEMENTS AU CHOIX : Nous proposons plusieurs types de logements dans différentes orientations. 2 chambres + 2 salles de bains et 3 chambres + 2 salles de bains. Tous les logements de 3 chambres seront des unités d'angle, ce qui les rendra encore plus exclusifs pour les clients. Parmi ces logements, nous proposons des maisons orientées au sud, à l'est et à l'ouest. Toutes sont dotées de terrasses/porches donnant sur l'espace vert et la Laguna de La Mata. VUES INCROYABLES SUR LA LAGUNA DE LA MATA : Depuis tous les logements du premier et du deuxième étage de notre nouveau lotissement, vous pourrez profiter de vues privilégiées sur la Laguna de La Mata. Comme il s'agit du dernier projet adjacent à la Laguna de La Mata, vous bénéficierez d'un panorama de rêve sur cet environnement naturel. PROXIMITÉ DE LA PLAGE : À seulement 10 minutes en voiture ou 15 minutes à vélo, vous pourrez profiter de la plage de Moncayo. PROXIMITÉ DES CENTRES COMMERCIAUX ET DES ZONES URBAINES : Situé à seulement 10 minutes en voiture du centre commercial Habaneras, à 9 minutes de la zone de restauration et de divertissement de Ciudad Quesada, ou à 8 minutes du centre de Guardamar del Segura, notre développement a un emplacement imbattable. COURS DE GOLF : Pour les amateurs de ce sport, il convient de mentionner qu'à seulement 15 minutes en voiture, vous pouvez profiter de l'un des meilleurs terrains de golf d'Espagne, situé dans l'urbanisation de La Finca de Algorfa. À noter également les magnifiques terrains de golf de La Marquesa et de Vistabella, qui se trouvent respectivement à 10 et 20 minutes en voiture. Complexe situé à 30 minutes de l'aéroport d'Alicante et à 1 heure de l'aéroport de Murcia - Corvera. NOUVEAU COMPLEXE RÉSIDENTIEL A EL RASO Nouveau complexe résidentiel fermé d'appartements touristiques à El Raso, Guardamar del Segura. Ce nouveau complexe résidentiel sera composé de 78 appartements touristiques et penthouses distribués au rez-de-chaussée, au premier étage et au deuxième étage + solarium. Toutes les propriétés disposeront d'une place de parking et d'une salle de stockage dans le sous-sol, qui sera accessible par les escaliers de la communauté ou par l'ascenseur à chaque étage. Les espaces communs comprendront une piscine, une salle de réception/réunion, un gymnase extérieur, un terrain de pétanque, un mini-golf et un spa. DES DÉTAILS À SOULIGNER DANS NOTRE NOUVEAU DÉVELOPPEMENT : DES LOGEMENTS À LOYER AUTORISÉ : Ces appartements offrent ce qu'aucun autre n'offre dans ce quartier résidentiel. Vous pouvez profiter de votre logement 4 mois par an pour votre usage personnel, et le reste de l'année, il peut être loué, ce qui vous permet d'obtenir une rentabilité sans avoir à vous soucier de quoi que ce soit, car une société de location spécialisée s'occupera de tout pour vous. LOGEMENTS COMPLETEMENT MEUBLES : tous les logements de notre nouveau projet seront entièrement meublés et prêts à être habités, avec l'éclairage, les meubles, les appareils électroménagers et les salles de bains entièrement finies. PLUSIEURS TYPES DE LOGEMENTS AU CHOIX : Nous proposons plusieurs types de logements dans différentes orientations. 2 chambres + 2 salles de bains et 3 chambres + 2 salles de bains. Tous les logements de 3 chambres seront des unités d'angle, ce qui les rendra encore plus exclusifs pour les clients. Parmi ces logements, nous proposons des maisons orientées au sud, à l'est et à l'ouest. Toutes sont dotées de terrasses/porches donnant sur l'espace vert et la Laguna de La Mata. VUES INCROYABLES SUR LA LAGUNA DE LA MATA : Depuis tous les logements du premier et du deuxième étage de notre nouveau lotissement, vous pourrez profiter de vues privilégiées sur la Laguna de La Mata. Comme il s'agit du dernier projet adjacent à la Laguna de La Mata, vous bénéficierez d'un panorama de rêve sur cet environnement naturel. PROXIMITÉ DE LA PLAGE : À seulement 10 minutes en voiture ou 15 minutes à vélo, vous pourrez profiter de la plage de Moncayo. PROXIMITÉ DES CENTRES COMMERCIAUX ET DES ZONES URBAINES : Situé à seulement 10 minutes en voiture du centre commercial Habaneras, à 9 minutes de la zone de restauration et de divertissement de Ciudad Quesada, ou à 8 minutes du centre de Guardamar del Segura, notre développement a un emplacement imbattable. COURS DE GOLF : Pour les amateurs de ce sport, il convient de mentionner qu'à seulement 15 minutes en voiture, vous pouvez profiter de l'un des meilleurs terrains de golf d'Espagne, situé dans l'urbanisation de La Finca de Algorfa. À noter également les magnifiques terrains de golf de La Marquesa et de Vistabella, qui se trouvent respectivement à 10 et 20 minutes en voiture. Complexe situé à 30 minutes de l'aéroport d'Alicante et à 1 heure de l'aéroport de Murcia - Corvera.