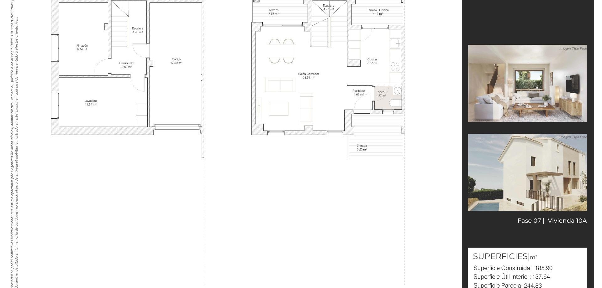
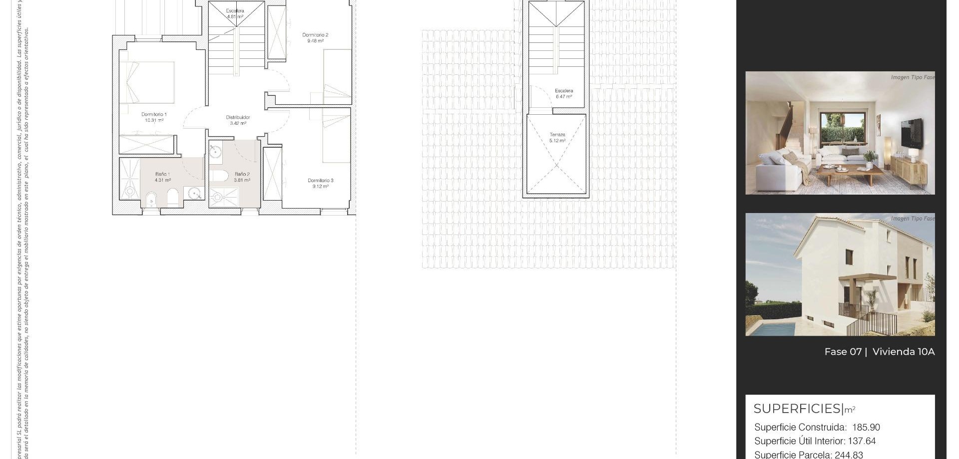
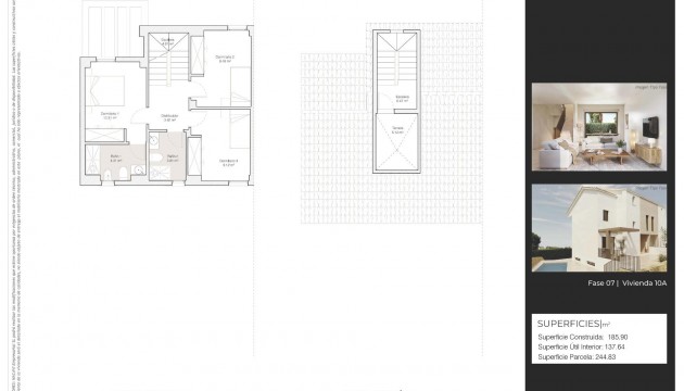
Villas jumelées exclusives de nouvelle construction avec piscine privée et garage à La Nucía Découvrez ce lotissement résidentiel haut de gamme composé de 14 villas jumelées de style méditerranéen récemment construites, alliant une architecture intemporelle à des intérieurs modernes. Situées à proximité du principal centre commercial de La Nucía, ces maisons offrent un mélange parfait de tranquillité, de sophistication et de commodité. Emplacement privilégié à La Nucía La Nucía est une ville très prisée de la région de Marina Baixa, dans la province d'Alicante, connue pour son environnement paisible, ses excellentes infrastructures et sa proximité avec la ville animée de Benidorm. Les résidents profitent d'un style de vie méditerranéen détendu avec des écoles internationales, des installations sportives haut de gamme, des hôpitaux de premier ordre, des restaurants gastronomiques, des terrains de golf et de belles plages à proximité. La ville est située à seulement 8 km de Benidorm, à 6 km des plages d'Altea et à 51 km au nord d'Alicante. Confort moderne et équipements haut de gamme Chaque villa est située sur un terrain privé et comprend un sous-sol avec garage, buanderie et débarras. Le rez-de-chaussée offre plusieurs terrasses, une piscine privée, un salon-salle à manger ouvert sur la cuisine et des toilettes pour invités. Au premier étage, vous trouverez 3 chambres et 2 salles de bains, dont une suite parentale avec salle de bains attenante. Le solarium sur le toit offre une vue panoramique dégagée. Les spécifications de haute qualité comprennent : Fenêtres en aluminium à rupture de pont thermique Porte d'entrée sécurisée Porte de garage motorisée Chauffage et climatisation aérothermiques avec système Airzone pour le contrôle individuel de chaque pièce Eau chaude sanitaire par système aérothermique Un style de vie tranquille et élégant À La Nucía, le luxe se définit par l'équilibre entre le temps, le confort et le bien-être. Du petit-déjeuner sur votre terrasse aux après-midis à la plage ou au golf, en passant par les soirées dans les restaurants gastronomiques, cet emplacement offre un style de vie privilégié au cœur de la Costa Blanca. Distances des principaux points d'intérêt : Centre commercial : 1 km Plage : 6 km Benidorm : 8 km Playa del Albir : 15 km Terra Mítica : 5 minutes École internationale Elians : 5 minutes Aéroport d'Alicante : 40 km La maison de vos rêves en Méditerranée Ces villas à La Nucía sont idéales pour ceux qui recherchent une résidence permanente, une résidence secondaire ou une opportunité d'investissement haut de gamme. Avec leur emplacement stratégique, leurs finitions de qualité supérieure et leur design moderne, elles représentent une opportunité exceptionnelle sur la Costa Blanca. Contactez-nous dès aujourd'hui pour organiser une visite et réserver votre place dans ce programme immobilier exclusif.