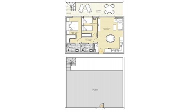
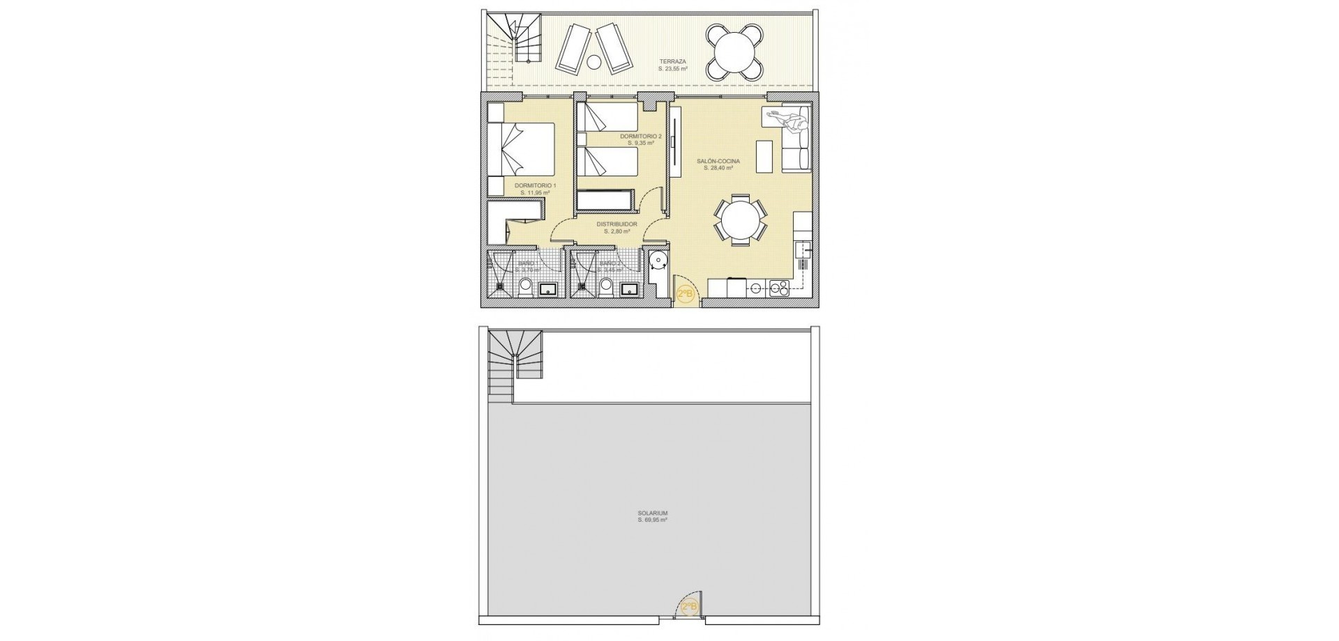
NOUVEAU COMPLEXE RÉSIDENTIEL AVEC VUE SUR LA MER À FINESTRAT Nouveau complexe résidentiel avec vue sur la mer à Finestrat. Complexe composé de 9 blocs de 9 appartements chacun. Il y a 3 types de logements : 27 penthouses avec solarium privé, 27 au premier étage avec terrasses et 27 au rez-de-chaussée avec jardin privé. Le tout dans un environnement privé et exclusif, pour profiter d'activités sportives et des divertissements. Les maisons ont un design moderne et exclusif et sont équipées des dernières technologies de construction appliquées au confort, à la thermique et à l'esthétique. technologies de construction appliquées au confort, à l'isolation thermique et acoustique, à l'énergie aérothermique, à la climatisation, etc. Conçues dans un environnement privé de luxe, elles disposent d'une piscine communautaire avec une zone séparée pour les enfants et les adultes. Grandes zones de jardin privées. Salle de sport avec jacuzzi, vestiaires et douches. Espace de détente. Aire de jeux pour les enfants. De là, vous pouvez profiter de vues privilégiées sur la mer Méditerranée, ainsi que sur la fantastique et spectaculaire ligne d'horizon de Benidorm. Finestrat est situé dans la région Marina Baixa de la Costa Blanca, à proximité de Benidorm et à environ 40 kilomètres de la ville d'Alicante et de l'aéroport international. Benidorm se trouve à cinq minutes en voiture des propriétés et offre tous les services dont vous avez besoin, notamment des magasins, des bars, des restaurants, des supermarchés, des banques, des pharmacies et plusieurs écoles privées internationales. Les plages de Levante, Poniente et Cala de Finestrat, qui s'étendent sur plus de 6 km, sont parmi les meilleures d'Europe et ont été récompensées par le drapeau bleu de l'Union européenne. Tous les services de loisirs tels que les parcs à thème Aqua Natura, Terra Mítica, Terra Natura, Aqualandia et Mundomar, les terrains de golf Sierra Cortina et Villaitana, la randonnée et l'escalade à Puig Campana, un cadre naturel incomparable, ou encore les sports nautiques.