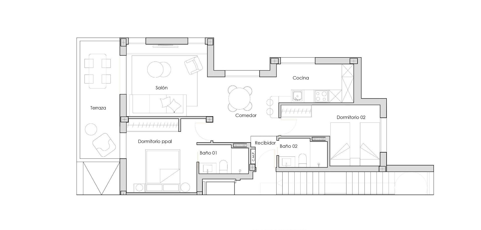
Nieuwbouw toeristische appartementen in Santa Rosalía Lake and Life Resort Costa Cálida Toplocatie in het hart van de Costa Cálida Deze nieuwbouw toeristische appartementen in Santa Rosalía Lake and Life Resort vertegenwoordigen een van de beste investerings- en lifestylemogelijkheden in de regio Murcia. Het complex ligt op minder dan 4 km van de stranden van Los Alcázares en op slechts 22 km van de internationale luchthaven van Murcia en biedt een onovertroffen combinatie van bereikbaarheid, vrije tijd en modern mediterraan leven. De historische stad Cartagena ligt op slechts 15 minuten afstand, terwijl er binnen een straal van 10 km verschillende prestigieuze golfbanen te vinden zijn. Exclusief wooncomplex met 40 appartementen Het project bestaat uit vijf onafhankelijke gebouwen met in totaal 40 volledig gemeubileerde appartementen, verdeeld over vier verdiepingen met twee units per verdieping. Elk appartement beschikt over 2 slaapkamers en 2 badkamers, ontworpen met het oog op comfort en functionaliteit. Kopers kunnen kiezen tussen units op de begane grond met privétuinen, appartementen op de middelste verdieping met grote terrassen of penthouses met privéterras en een prachtig vrij uitzicht. Volledig uitgeruste woningen, klaar om te betrekken Elke woning wordt turnkey opgeleverd, inclusief meubilair, airconditioning, verlichting, keukenapparatuur, beddengoed, handdoeken en een decoratiepakket. Dit zorgt ervoor dat zowel eigenaren als gasten vanaf dag één kunnen genieten van een zorgeloze ervaring, waardoor het een ideaal product is voor vakantieverhuur of persoonlijk gebruik. Premium voorzieningen en gemeenschappelijke ruimtes De gated community ligt op een perceel van 7.000 m² en is ontworpen met het oog op privacy en veiligheid dankzij de omheining en gecontroleerde toegang. Bewoners en gasten kunnen genieten van aangelegde mediterrane tuinen, gemeenschappelijke zwembaden, kinderspeelplaatsen en ruime parkeerplaatsen. Daarnaast omvat het project een speciaal gebouw voor gedeelde diensten zoals receptie, café, wasserette en fitnessruimte. Santa Rosalía Lake and Life Resort Lifestyle Als u hier een appartement bezit, heeft u toegang tot de exclusieve voorzieningen van Santa Rosalía Lake and Life Resort, een uniek wooncomplex met meer dan 126.000 m² aan groene zones. Hoogtepunten zijn onder meer een spectaculaire kristalheldere lagune van 17.000 m² met witte zandstranden, twee eilanden (waarvan één met een eigen bar), strandclubs, sportfaciliteiten, fiets- en wandelpaden, paddle- en tennisbanen, minigolf, hondenparken en een bruisend clubhuis. Beveiligings- en onderhoudsdiensten zijn 24/7 beschikbaar, zodat zowel bewoners als bezoekers zich geen zorgen hoeven te maken. Investeer in kwaliteit en levensstijl Deze nieuw gebouwde toeristische appartementen combineren een hoog verhuurpotentieel met een uitzonderlijke levensstijl aan de Costa Cálida. Of het nu gaat om een vakantiehuis of een investering, Santa Rosalía Lake and Life Resort is een bestemming die kwaliteit en waarde garandeert. Neem vandaag nog contact met ons op voor meer informatie en om uw appartement in dit unieke mediterrane resort te reserveren.