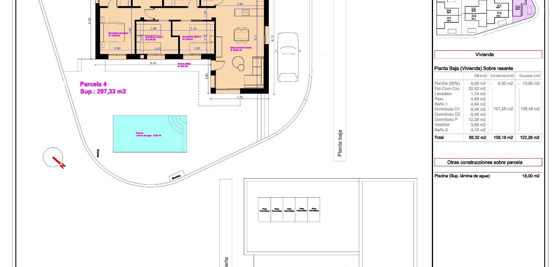
DE MEDITERRANE LIFESTYLE OP ÉÉN NIVEAU Het dorp Daya Nueva is de perfecte combinatie van een rustige en comfortabele landelijke levensstijl en de bruisende kustgebieden van de Costa Blanca op slechts een klein eindje rijden. Deze nieuwbouwproject van semi-vrijstaande en vrijstaande villa's is met veel oog voor detail ontworpen en gebouwd met een hoog afwerkingsniveau. Alle villa's krijgen een eigen privézwembad. UW EIGEN WONING, ALLES OP ÉÉN NIVEAU Het ontwerp is licht, fris en modern. Gelegen in een klein dorpje in het zuiden van de provincie Alicante. Het dorp heet Daya Nueva. Nieuwbouwwoningen op één verdieping in het nieuwe gedeelte van Daya Nueva. Op slechts enkele minuten lopen van het centrum van het dorp. De woning bestaat uit 3 slaapkamers, 2 badkamers en een privézwembad van 18 m². Woon-/eetkamer met dubbel hoog plafond, open keuken, veel natuurlijk licht en mogelijkheid voor een solarium tegen meerprijs. De hoofdslaapkamer heeft de mogelijkheid voor een inloopkast en een en-suite badkamer. Gelegen in een nieuwe en rustige woonwijk, op ongeveer 10 minuten van het strand van La Marina del Pinet en Guardamar del Segura. Gemakkelijke toegang tot de snelweg A-70 en op ongeveer 25 minuten van de internationale luchthaven van Alicante.