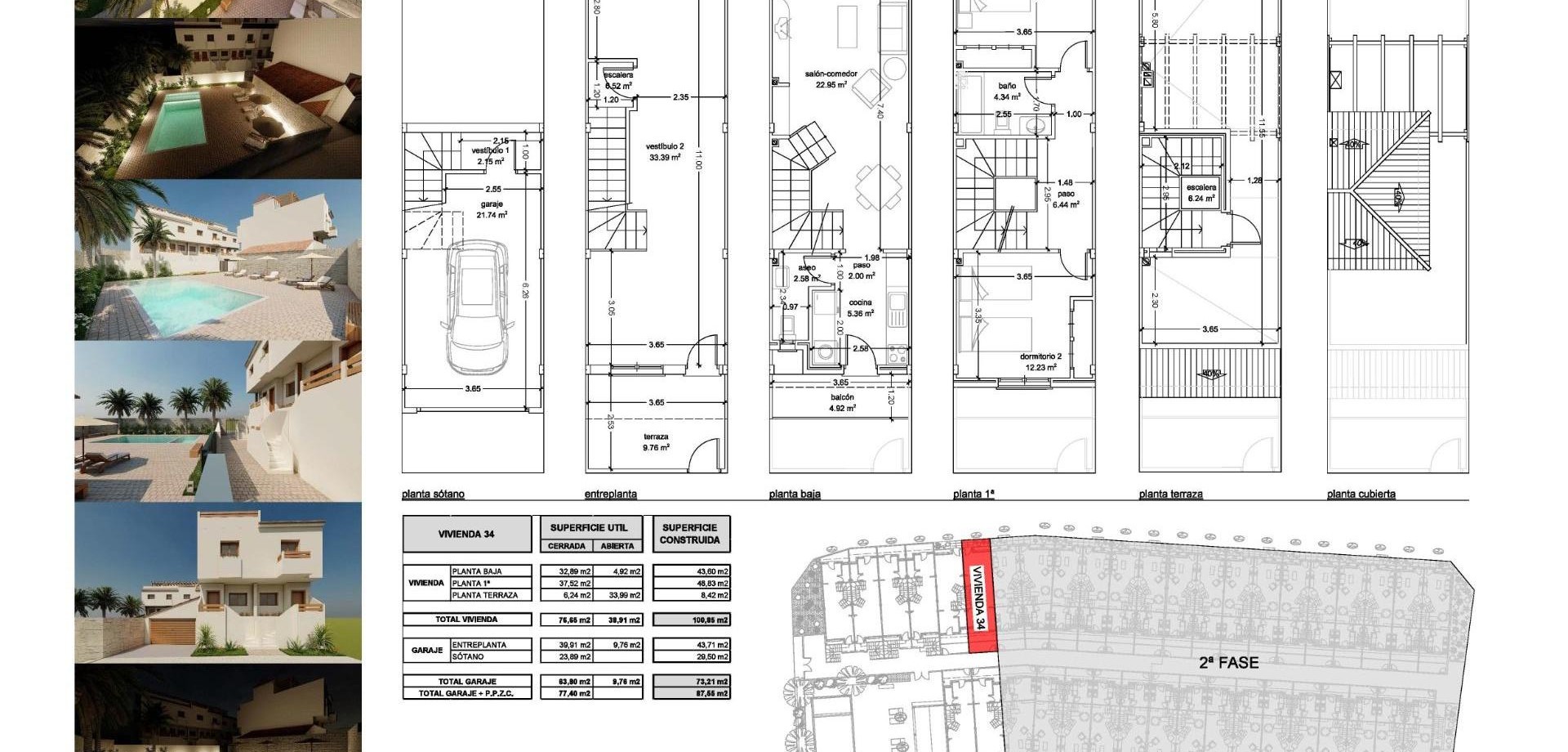
Nieuwbouwwoningen met uitzicht op zee in Portman Murcia Exclusief wonen in Portman Bay Dit exclusieve project van 39 nieuwbouwwoningen ligt op een verhoogde locatie in Portman en biedt een panoramisch uitzicht over de Middellandse Zee en de prachtige Portman Bay. Deze woningen liggen op slechts 1,6 km van het strand en zijn ontworpen om de authentieke mediterrane levensstijl te omarmen in een rustige en bevoorrechte natuurlijke omgeving. Portman is een charmant kustplaatsje, omgeven door beschermende bergen en open naar de zee, met een zuidelijke ligging en milde temperaturen het hele jaar door. Het gebied is ideaal voor liefhebbers van het buitenleven, met wandel- en mountainbikeroutes, kristalhelder water om in te zwemmen en een ontspannen sfeer die perfect is om even helemaal tot rust te komen. Tegelijkertijd ligt het op slechts 15 minuten rijden van Cartagena, waar u winkelcentra, ziekenhuizen, culturele bezienswaardigheden en een levendige jachthaven vindt. Moderne herenhuizen met 2 en 3 slaapkamers en een eigen solarium Het project biedt herenhuizen met 2 en 3 slaapkamers, 1 complete badkamer en 1 gastentoilet, verdeeld over 3 of 4 verdiepingen plus een eigen solarium op het dak. Elke woning is zorgvuldig ontworpen om comfort, functionaliteit en natuurlijk licht te maximaliseren. Vanaf uw privéterras kunt u genieten van een 360 graden uitzicht op de zee en het omliggende landschap, waardoor een unieke ruimte ontstaat om te ontspannen, te zonnen of gasten te ontvangen. Hoogwaardige specificaties en praktische ruimtes Deze nieuwbouwwoningen worden opgeleverd met hoogwaardige materialen en moderne afwerkingen, waaronder: Moderne keukens uitgerust met apparatuur van topmerken Gepantserde toegangsdeur Badkamers met wastafels, spiegels, doucheschermen en elektrische handdoekverwarmers Aerothermisch systeem voor warm water Voorbereiding voor split-airconditioningunits Ruime privé-ondergrondse garage en opslagruimte Grote opslagruimtes bieden ideale ruimte voor fietsen, strandspullen of duikuitrusting, waardoor deze woningen perfect zijn voor mensen die genieten van de vele buitenactiviteiten die in de regio beschikbaar zijn. Gemeenschappelijke ruimtes voor ontspanning en sociaal leven Het wooncomplex beschikt over aangelegde tuinen en een gemeenschappelijk zwembad, waardoor bewoners kunnen genieten van een comfortabele en veilige omgeving om te ontspannen en tijd door te brengen met familie en vrienden. Afstanden tot belangrijke bezienswaardigheden Strand 1,6 km Cartagena 15 km La Manga Club Golf 12 km Haven van Cartagena 15 km Internationale luchthaven van Murcia 35 km Luchthaven van Alicante 120 km Ontdek uw mediterrane levensstijl in Portman Of u nu op zoek bent naar een permanente woning of een vakantiehuis aan zee, deze herenhuizen in Portman bieden uitzicht, comfort en een uitzonderlijke natuurlijke omgeving. Neem vandaag nog contact met ons op voor meer informatie of om een bezoek te regelen aan dit uitstekende nieuwe project.