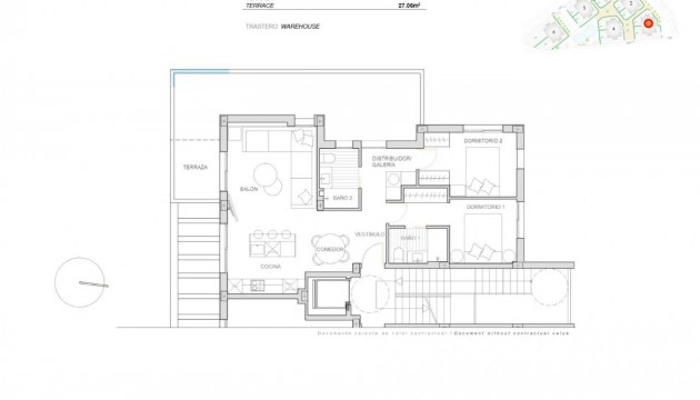
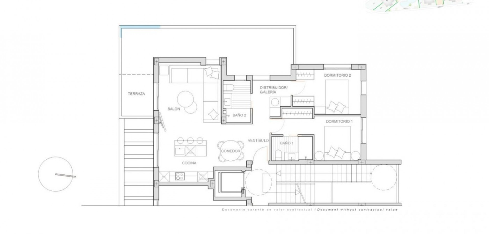
NIEUWBOUW APPARTEMENTEN IN PRIVE-GATED RESORT IN DE PROVINCIE MURCIA Nieuwbouw residentieel complex van 6 blokken, een totaal van 42 appartementen. Mooie appartementen met 3 en 2 slaapkamers en 2 badkamers met uitzicht op het grote meer en de groene zones van dit grote luxe resort. Begane grond appartementen met eigen tuin, bovenste verdieping appartementen met eigen solarium. Complex heeft een gemeenschappelijk zwembad en alle appartementen hebben een parkeerplaats tempo en een berging. Gelegen in een prive-gated resort, met een hoofdingang en 24 uur beveiliging. Het resort is ontworpen rond een indrukwekkende 126.000 m2 groen gebied. Het omvat wandel-en fietspaden, sportfaciliteiten, paddle-en tennisbanen, een mini-golfbaan, tuinen, honden parken, recreatiegebieden, clubhuis.... Ook in het centrale gebied is het juweel van het resort, een kristalhelder kunstmatig meer van bijna 17.000 m2 wateroppervlak, omgeven door witte zandstranden en palmbomen, die een stukje van het Caribisch gebied naar de regio Murcia brengen. Er zijn 2 eilanden in het meer, een ervan heeft zijn eigen bar, er zijn ook "strand Chiringuitos" verspreid over het meer. Het resort is strategisch gelegen op minder dan 4 km van het strand en de stad Los Alcázares, waar u verschillende watersporten kunt beoefenen, omringd door verschillende golfbanen en de stad Cartagena op minder dan 15 minuten met de auto en 22 km van de luchthaven van Murcia, waardoor u een breed cultureel, gastronomisch en sportief aanbod binnen handbereik heeft.