Algorfa · La Finca Golf Villas · New Build

659.000
Notify me price drop

Algorfa · La Finca Golf Villas · New Build

Key Features

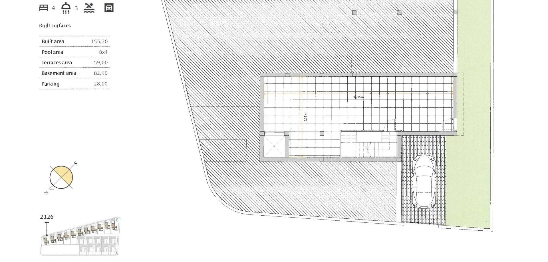
Bedrooms: 4
Bathrooms: 3
Built: 235m2
Plot: 420m2
Pool: Yes

Features

Private Pool
Key Ready
Gated
Near Schools
Air Conditioning: Pre-Installed
Double Bedrooms: 4
Near Trees
Location: Urbanisation
Solarium: Yes
Near Golf / Golf Resort Property
Useable Build Space: 130 Msq.
Beach: 12000 Meters
Number of Parking Spaces: 2
Under-Build / Basement
Parking - Space
Terrace: 59 Msq.

Description

Location

Ask for information

Responsable del tratamiento: Gary Briant, Finalidad del tratamiento: Gestión y control de los servicios ofrecidos a través de la página Web de Servicios inmobiliarios, Envío de información a traves de newsletter y otros, Legitimación: Por consentimiento, Destinatarios: No se cederan los datos, salvo para elaborar contabilidad, Derechos de las personas interesadas: Acceder, rectificar y suprimir los datos, solicitar la portabilidad de los mismos, oponerse altratamiento y solicitar la limitación de éste, Procedencia de los datos: El Propio interesado, Información Adicional: Puede consultarse la información adicional y detallada sobre protección de datos Aquí.
WhatsApp