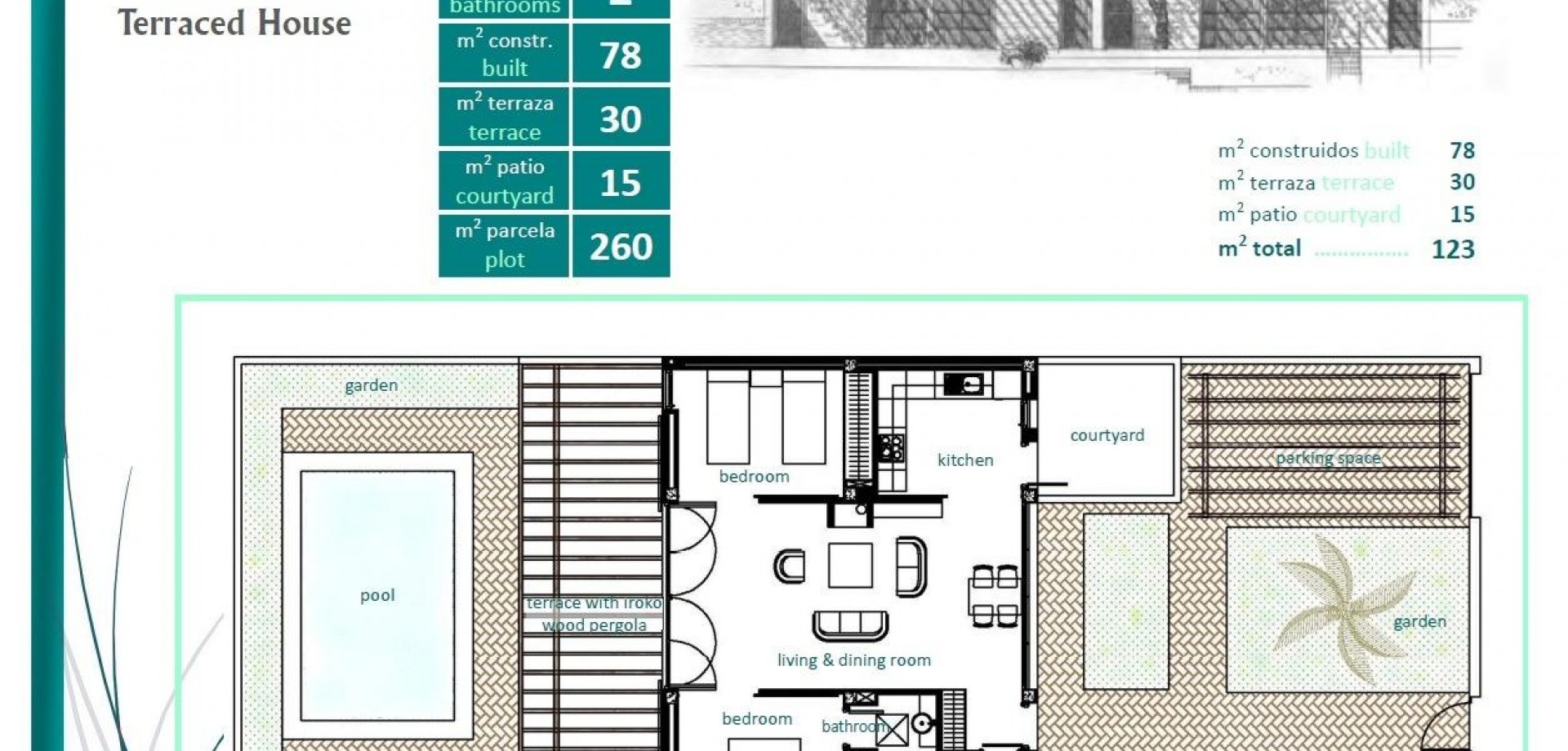
Elegant One-Level Townhouses with Private Pool in Peraleja Golf Resort – Costa Cálida Mediterranean-Style Townhouses in a Gated Golf Community Discover 11 exclusive single-storey townhouses located in the prestigious Peraleja Golf Resort, in the Murcia region of southern Spain. These modern Mediterranean homes are set on spacious plots of approximately 260 m², each offering a private pool, landscaped garden, and on-site parking. Designed with sloped ceilings and natural materials like wood and stone, these houses blend seamlessly with the surrounding landscape while offering stylish, timeless interiors. Comfortable Living with Premium Finishes Each house features: 2 bedrooms and 2 bathrooms Open-plan kitchen fully furnished with appliances Bright living-dining area with a cozy wood-burning fireplace Centralized air conditioning and gas radiator heating Reinforced front door and motorized vehicle access gate Private pool (3.5x5.5 m) with outdoor shower Exterior water and lighting points Fully landscaped garden ready to enjoy These properties have been carefully designed by a renowned architect, combining elegant lines with natural textures, creating a unique and harmonious environment within a secure gated community. Life in Peraleja Golf Resort – Nature and Security The houses are located within the Peraleja Golf Resort, which features a 24-hour security gate, piano bar, and clubhouse with a gourmet restaurant. The resort is surrounded by protected natural areas where walking, jogging, and cycling circuits are being developed for residents. The 18-hole golf course, originally designed by the legendary Severiano Ballesteros, is currently under renovation and scheduled to reopen by the end of 2025. Select homes and the social club enjoy distant sea views. Convenient Location Near Beaches and Cities This peaceful resort offers excellent access to key locations: Sucina and Avileses towns – 3-5 km Mar Menor beaches – 20 km (20 min by car) Murcia city – 25 km (20 min by car) Murcia Airport (RMU) – 25 km (15 min by car) Alicante Airport (ALC) – 80 km (45 min by car) La Zenia Boulevard Shopping Center – 35 km Enjoy the Charm of Costa Cálida Located near the traditional Spanish town of Sucina, residents can enjoy local shops, restaurants, and authentic charm, while still being close to the coast and vibrant city life. This area has become increasingly popular with international buyers for its quality of life, good infrastructure, wonderful weather year round and access to nature spots and the sea. Contact us today to secure your dream villa at Peraleja Golf and start enjoying life on the Costa Cálida!